Umbau und Sanierung eines Kulturdenkmals ‚In der Vorstadt‘ in Engen 2015-18
Bei diesem Projekt, handelte es sich um die Sanierung, Umbau mit Balkonanbau und den Dachausbau eines historischen Altstadthauses (Kulturdenkmal, §2 DschG) aus dem 17. Jahrhundert. An seiner Erhaltung liegt ein öffentliches Interesse.
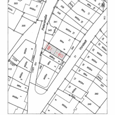
Das Flurstück, auf dem das Umbauvorhaben steht, ist langgezogen rechteckig, mit einer mittleren Tiefe von ca. 24 Metern und einer mittleren Breite von ca. 6.50 Metern und befindet sich in der östlichen Altstadt von Engen, entlang der historischen Stadtmauer.
Das Gebäude wurde auf die hist. Stadtmauer im Norden gesetzt und verspringt im Schnitt in den Höhen um 2 Geschosse. Es hat 5 Geschosse zur Peterstrasse und 3 Geschosse zur Vorstadt, zuzügl. 3 Dachstuhlebenen.
Die Fassade im Norden ist eine 3-geschossige, massiv gemauerte Stadtmauer aus Steinmaterial, oberhalb ihrer, wurde 2-geschossig eine verputzte Fachwerkfassade aufgesetzt. Die südliche Fassade besteht im Erdgeschoss aus einer massiven Natursteinwand und oberhalb ihrer, ebenso 2-geschossig, aus einem Sichtfachwerk mit ausgemauerten Gefachen. Die vorhandenen Holzfenster wurden teilweise in den 90igern gegen Kunststofffenster ausgetauscht, diese werden durch neue Holzsprossenfenster ersetzt. Die Decken sind Holzbalkendecken mit Zwischendecken aus erdigem Schuttmaterial.
Das Gebäude hat 2 Kaminzüge, die erhalten bleiben. Die Beheizung des Gebäudes erfolgt mit Gas. Die Versorgungsleitungen Wasser, Gas und Strom wurden erneuert.
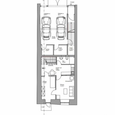
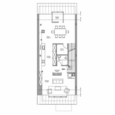
Das Kulturdenkmal wurde als Wohn- und Gewerbehaus, nach dem zeitgemäßen Wissensstand der Bautechnik behutsam saniert, ohne eine Vielfalt von modernen Materialien zu verwenden.


























